4 bedroom Detached House for sale in Brentwood Book a Property Valuation

Horseman Side, Brentwood

Price £2,000,000

Detached House

Overview

4 Bedroom Detached House for sale in Horseman Side, Brentwood

Guide Price £2,000,000 to £2,250,000 to include consented barn for conversion.
This distinguished Grade II Listed home is set within a stunning plot of approximately 4.5 acres, complete with formal

Guide Price £2,000,000 to £2,250,000 to include consented barn for conversion.

This distinguished Grade II Listed home is set within a stunning plot of approximately 4.5 acres, complete with formal gardens, a picturesque lake, and two substantial barns, one of which benefits from planning permission to convert to a three bedroom dwelling of 1,580 sq ft with separate vehicular access (Brentwood Council Ref: 25/00715/FUL). Just four miles from Brentwood High Street and the M25 (J28), it provides countryside living with exceptional convenience.

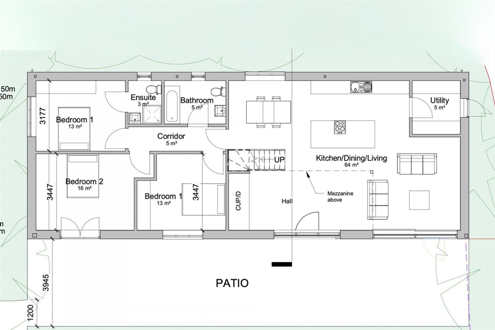
The interiors combine historic character with contemporary elegance. The reception spaces are generous and versatile, with exposed timbers and fine joinery retained throughout. A welcoming hallway/sitting room features one of the home’s two magnificent Inglenook fireplaces, while the second forms a striking focal point in the beautifully proportioned living room, complete with wood-burner. Beyond, there are four further reception areas including a formal dining room and a study. At the heart of the home, the kitchen has been designed with a stylish shaker finish and central island, complemented by integrated appliances and direct views over the gardens. The adjoining breakfast area opens seamlessly to the terrace, while a utility and cloakroom complete the ground floor.

Upstairs, the broad landing leads to four double bedrooms. The principal suite is particularly impressive, featuring a dressing area, exposed beams, and a red-brick fireplace. A recently fitted bathroom with freestanding tub and walk-in shower, together with a separate vaulted shower room, serve the remaining bedrooms.

The grounds are as impressive as the house itself: sweeping lawns, landscaped planting, a waterlily pond, and a lake with bridge to a central island create a tranquil setting. Outbuildings include a large timber barn with four stables, two garages, a workshop, and storage rooms, plus an additional open-fronted steel-framed barn (19m x 7m) with planning consent to convert to a three bedroom dwelling of 1,580 sq ft with separate vehicular access.

Planning has also been passed to convert the timber barn into a two-bedroom annexe, though it would also lend itself to an excellent office or leisure space.

Approached via a gated driveway, the property offers extensive parking and a high degree of privacy. This historic home has been carefully modernised to provide all the comforts required for family life, while preserving its remarkable heritage, and offering excellent further potential.

Services: Gas connected, private drainage, mains electricity and water.

Anti-Money Laundering Checks and Legal Support:
A mandatory Anti-Money Laundering (AML) check is required on all buyers and sellers and is facilitated via our legal partner at a cost of £65 per property payable upon instruction. The service also provides access to an unlimited legal advice helpline staffed by qualified solicitors to assist with any questions you may have during your moving journey, and Mover Protection which is designed to help recoup certain costs if your sale or purchase falls through through no fault of your own (terms and limits apply).

Read more

Important Information

  • This is a Freehold property.
  • This Council Tax band for this property is: G
Sorry! An EPC is not available for this property.

Green Street, Fryerning, Ingatestone

5 Bedroom Detached House

Green Street, Fryerning, Ingatestone

Frog Street, Kelvedon Hatch

4 Bedroom Detached House

Frog Street, Kelvedon Hatch

Church Street, Great Baddow

8 Bedroom Detached House

Church Street, Great Baddow

Chelmsford Road, Margaret Roding

7 Bedroom Detached House

Chelmsford Road, Margaret Roding

Shenfield Hall, Hall Lane, Shenfield

6 Bedroom Detached House

Shenfield Hall, Hall Lane, Shenfield

The Old Rectory, Stock Village

9 Bedroom Detached House

The Old Rectory, Stock Village


Update Cookies Preferences