5 bedroom House for sale in Ingatestone Book a Property Valuation

Fyrerning Lane, Ingatestone

Guide Price £1,200,000

House

Overview

5 Bedroom House for sale in Fyrerning Lane, Ingatestone

OFFERED WITH NO ONWARD CHAIN

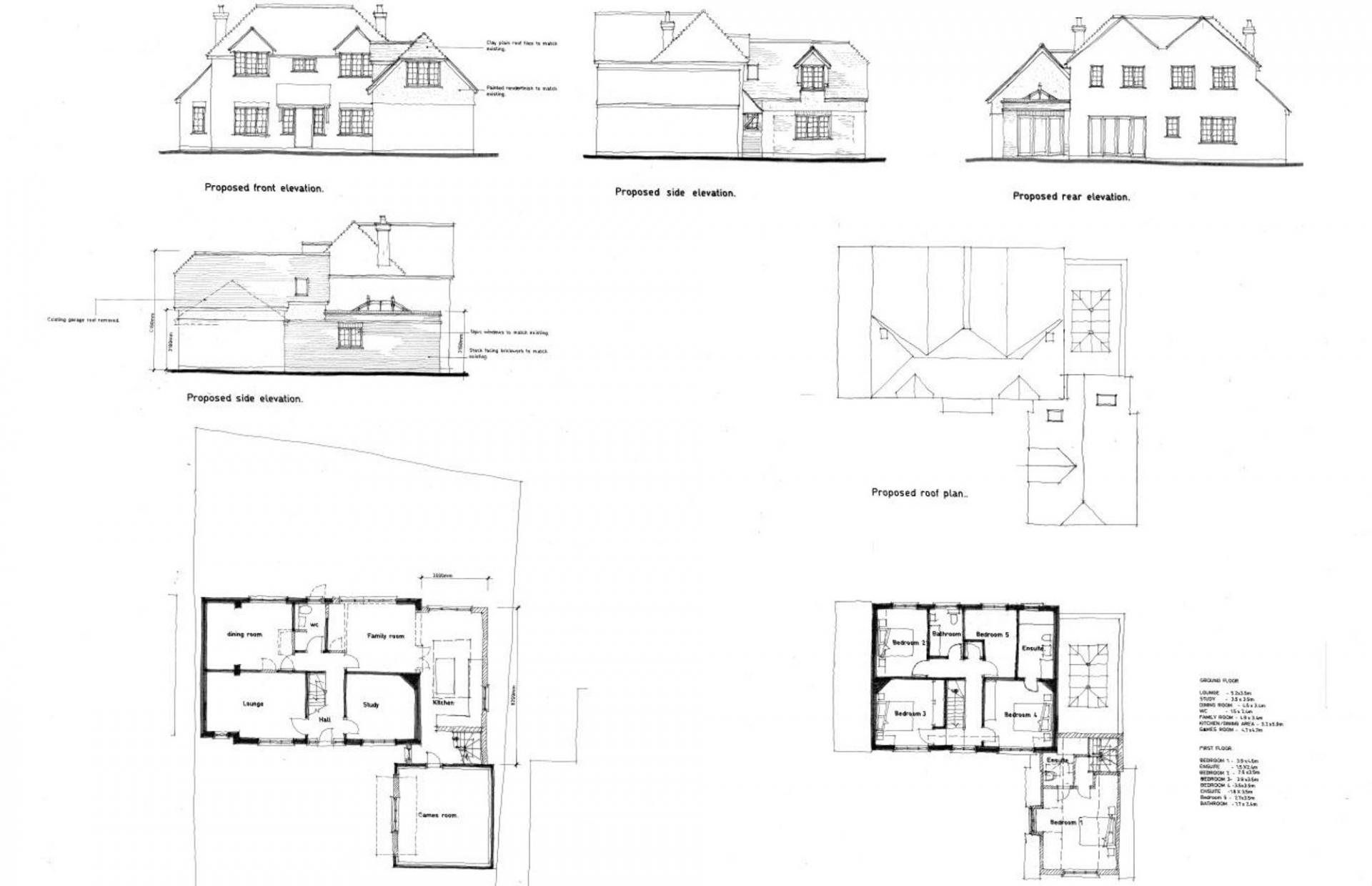
VICTORIAN - A substantial detached five bedroom home in the very heart of Ingatestone, tucked just off the High Stree...

OFFERED WITH NO ONWARD CHAIN

VICTORIAN - A substantial detached five bedroom home in the very heart of Ingatestone, tucked just off the High Street, offering a sumptuous detached annexe arranged over two floors, and a large gated driveway.

Fully refurbished by the present owners, the property offers a welcoming hallway and a fabulous spacious arrangement of entertaining space, with a choice of reception, family and dining rooms. The kitchen is of a great size and well-fitted with shaker units, plus a separate utility room and cloakroom/WC. To the first floor there are four bedrooms, the master having a five-piece en-suite, plus a modernised family bathroom.

The property has the benefit of historic planning to enlarge. The present owners have advised that this can be re examined which will lead to a greater footprint particularly on the ground floor.

Parking is provided via the driveway for several vehicles, with gated side access to the rear garden, which offers a good degree of privacy and screening due to the careful planting of hedging, plus artificial lawn and planting borders.

Located in a prominent position within Ingatestone village, close to the High Street shops and amenities, and also within walking distance of the mainline railway station and the three popular & well-reputed schools.

Anti-Money Laundering Checks and Legal Support:
A mandatory Anti-Money Laundering (AML) check is required on all buyers and sellers and is facilitated via our legal partner at a cost of £65 per property payable upon instruction. The service also provides access to an unlimited legal advice helpline staffed by qualified solicitors to assist with any questions you may have during your moving journey, and Mover Protection which is designed to help recoup certain costs if your sale or purchase falls through through no fault of your own (terms and limits apply).

Read more

Important Information

  • This is a Freehold property.
  • EPC Rating is C
Sorry! An EPC is not available for this property.

High Street, Stock

4 Bedroom Detached House

High Street, Stock

Hatch Road, Pilgrims Hatch

4 Bedroom House

Hatch Road, Pilgrims Hatch

Horseman Side, Brentwood

4 Bedroom Barn Conversion

Horseman Side, Brentwood

Main Road, Danbury

4 Bedroom Detached House

Main Road, Danbury

Post Office Road, Ingatestone

4 Bedroom Detached House

Post Office Road, Ingatestone

Cricketers Lane, Herongate

5 Bedroom Detached House

Cricketers Lane, Herongate


Update Cookies Preferences