4 bedroom Terraced House for sale in Brentwood Book a Property Valuation

St. Thomas Road, Brentwood, CM14

Guide Price £800,000

Terraced House

Overview

4 Bedroom Terraced House for sale in St. Thomas Road, Brentwood, CM14

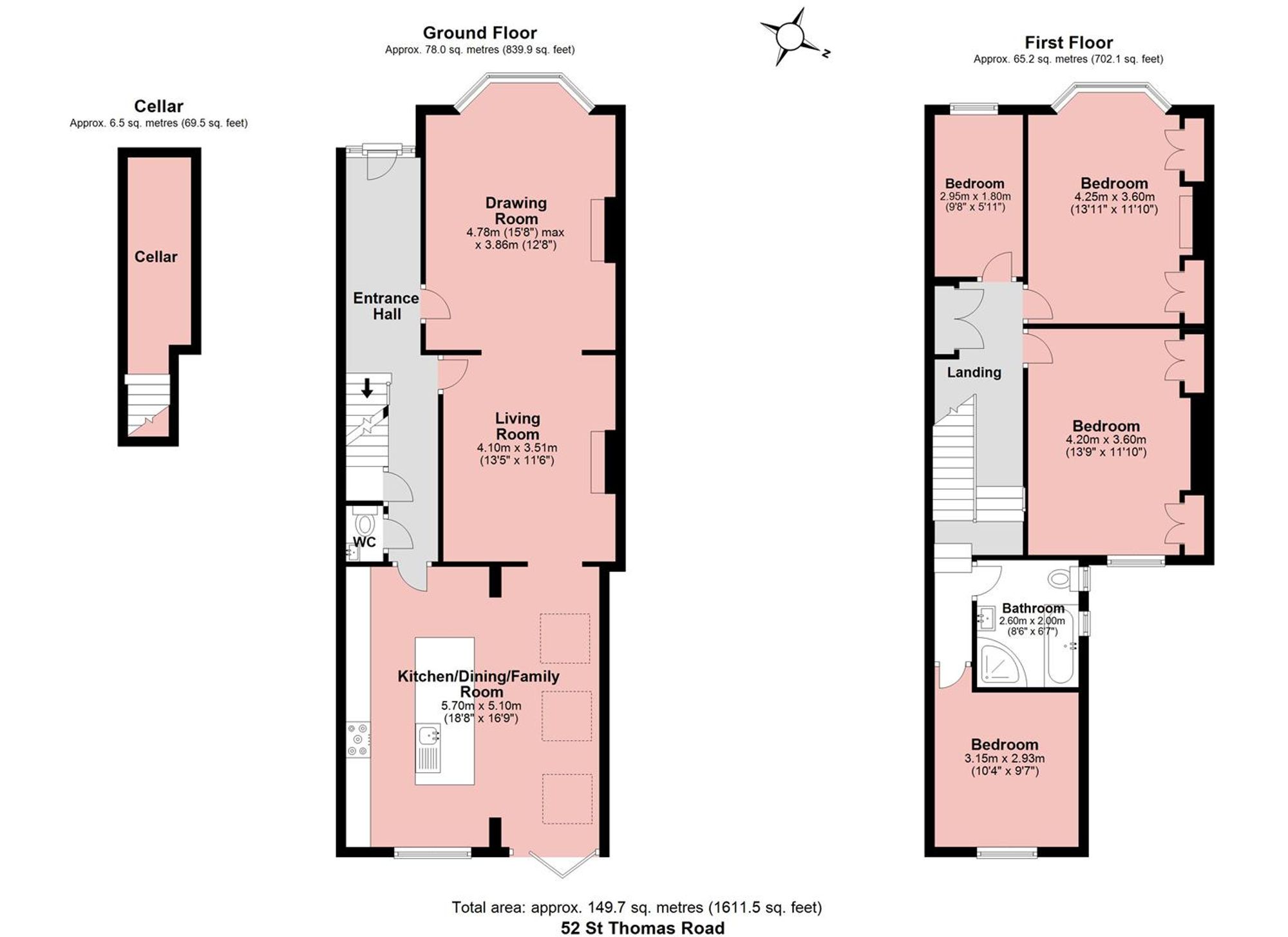
Guide Price £800,000 - £900,000 Nestled in the heart of Brentwood, this glorious Victorian home showcases the best of period architecture with contemporary styling.

Key Features:

  • Stunning Victorian terraced home with classic bay windows and intricate detailing.
  • Living room with high ceilings, detailed cornices, and a charming fireplace
  • Spacious kitchen/dining/family room with part-vaulted ceiling and bi-fold doors to the garden.
  • Close to Brentwood High Street and Brentwood Station for excellent transport links.
  • Beautifully styled interior enhancing the glorious character of this home.

Guide Price £800,000 - £900,000

Nestled in the heart of Brentwood, this glorious Victorian home showcases the best of period architecture with contemporary styling. The front facade, adorned with classic bay windows and ornate detailing, sets a welcoming tone for this wonderful home.

An elegant entrance hall with classic flooring leads to a spacious living room, bathed in natural light from its large bay window, and featuring a charming fireplace as a focal point. The high ceilings, detailed cornices, and ceiling roses are beautifully complemented by contemporary fittings, creating a perfect blend of originality and modernity.

The heart of the home lies in the expansive kitchen/dining/family room, which extends towards the rear garden. This area, featuring modern appliances and a large central island, is designed for family living and entertaining, with bi-fold doors opening to a well-maintained garden. The tasteful decor, with a mix of neutral tones and vibrant accents, adds to the home's welcoming atmosphere, with a part-vaulted ceiling and rooflight windows adding height and natural light.

Ascending to the first floor, the property boasts three generously sized bedrooms and an additional fourth room ideal as a nursery, home office, or dressing room. The master bedroom, with its own bay window, offers excellent space, with two further bedrooms being well-proportioned and stylishly decorated. A modern family bathroom is equipped with high-quality fixtures.

Energy Efficiency Current: 61.0
Energy Efficiency Potential: 82.0

Read more

Important Information

  • This Council Tax band for this property is: E
Sorry! An EPC is not available for this property.

Navestockside, Brentwood, Cm14

3 Bedroom Detached House

Navestockside, Brentwood, CM14

Ingatestone Road, Highwood, Cm1

3 Bedroom Not Specified

Ingatestone Road, Highwood, CM1

Trueloves Lane, Ingatestone, Cm4

3 Bedroom Not Specified

Trueloves Lane, Ingatestone, CM4

Church Road, Hatfield Peverel, Cm3

4 Bedroom Detached House

Church Road, Hatfield Peverel, CM3

High Street, Billericay, Cm12

3 Bedroom Not Specified

High Street, Billericay, CM12

The Street, High Easter, Cm1

3 Bedroom House

The Street, High Easter, CM1


Update Cookies Preferences